Wettbewerb 30 WE
in Stuttgart-Stammheim
Herbertstraße 50 + Zuffenhäuser Pfad 4
Bauherr
Baugenossenschaft
Zuffenhausen eG
Mehrfachbeauftragung 2018
1. Rang
Ausführung
LP 1-9
Bauzeit
04/2020 - 02/2022

E r l ä u t e r u n g s b e r i c h t

STÄDTEBAU-KONZEPT

Die Baugenossenschaft Zuffenhausen beabsichtigt im nordwestlichen Entrée-Bereich des Neubaugebiets „Langenäcker-Wiesert“ in Stuttgart-Stammheim eine neue Wohnbebauung zu realisieren.

Unter Berücksichtigung des städtebaulichen Umfeldes sieht unser Konzept zwei kompakte, viergeschossige Baukörper vor, die innerhalb des Baufensters orthogonal zueinander angeordnet den adressbildenden Auftakt des Neubaugebiets darstellen. Die Abfolge der Nachbargebäude, die quer- und längs zur Herbertstraße angeordnet sind, wird mit den beiden Neubauten sinnvoll ergänzt.

Der Bautypus „Flachdachhaus“ wird mit zeitgemäßen Gestaltungsmitteln interpretiert. Die Geschossdecken werden linienartig betont.
Durch loggienartig eingezogene Balkone entsteht für die Bewohner ein geschützter Freisitz. Die obersten Geschosse sind im Süden und Westen über die gesamte Gebäudelänge zurückgesetzt geplant.

ERSCHLIESSUNG

Die fußläufige Erschließung erfolgt von der Herbertstraße sowie vom Zuffenhäuser Pfad und schafft eine schlüssige und logische Durchwegung des Quartiers, an die sich die Hauszugänge der einzelnen Wohngebäude auf der Nord- bzw. Ostseite angliedern.
Die außenliegenden Treppenhäuser sind hell und offen gestaltet, mit großzügigem Treppenauge.
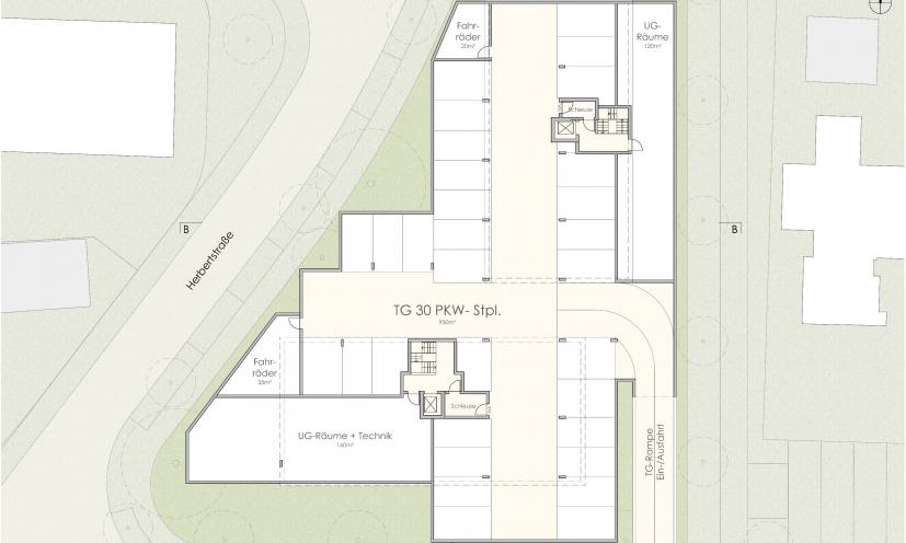
Die Tiefgaragenzufahrt erfolgt vom Zuffenhäuser Pfad.

WOHNUNGEN

Beide Wohnhäuser sind als Vierspänner-Typen mit kompakten Grundrissen konzipiert.
Die Durchmischung von Sozialmietwohnungen und Mietwohnungen für mittlere Einkommensbezieher in beiden Gebäuden spiegelt unsere Leitidee sozial gemischter Nachbarschaften wieder.

Besonderer Wert wurde bei der Planung auf helle, lichtdurchflutete Aufenthaltsräume gelegt. Alle Wohnzimmer sind nach Süden oder Westen ausgerichtet. Durch großzügige, bodentiefe Verglasungen werden die Balkone und Terrassen mit angrenzenden Grünanlagen optisch in den Wohnraum einbezogen.

Zugunsten einer hohen Wohnqualität erhalten selbst die kleinsten Wohnungen mit ca. 45m² Wohnfläche ein separates Schlafzimmer, überwiegend mit mind. 12m² Fläche, sodass hier je nach Bedarf eine oder zwei Personen leben können.

Die Bäder sind, wo möglich, außenliegend geplant. Die Küchen können zum Wohnraum hin offen oder mit Türe realisiert werden.

Nahezu alle Wohnungen sind mit einem Abstellraum ausgestattet: In den EG- bis 2.OG-Wohnungen sind diese als Balkonschränke konzipiert. Im DG erhalten die Wohnungen innenliegende Abstellräume.

Die Flächen für den ruhenden Verkehr (Tiefgarage), Technik, Nebenräume und Fahrradstellflächen sind im Untergeschoss nach wirtschaftlichen Gesichtspunkten untergebracht.

KONSTRUKTION / MATERIALITÄT

Die Primärkonstruktion ist als Massivbau gewählt, tragende Bauteile sind aus Stahlbeton bzw. Kalksandstein vorgesehen, mit Speicherflächen für ein vorteilhaftes Wohnklima.

Die Materialien sind funktional ansprechend und modern gewählt.

Die Geschossdecken werden mit glatter Putzoberfläche horizontal betont. Im Bereich der zurückspringenden Glasflächen zeichnen sich balkonartige Loggien ab.

Bodentief verglaste Fensterelemente wechseln sich mit geschlossenen Fassadenbereichen ab. Die Außenwände erhalten ein Wärmedämmverbundsystem mit lebhafter, mineralischer Besenstrich-Putzoberfläche, die sich von den glatten Fassadentafeln der Balkon-Abstellschränke farblich sowie auch bezüglich der Struktur gestalterisch absetzen.

Die beschriebenen Gestaltungselemente tragen zur optischen Gliederung mit zeitgemäßem Erscheinungsbild bei und lassen das bauliche Volumen reduziert erscheinen.

GRÜNRAUM

Innerhalb der Gebäuderücksprünge entlang der Herbertstraße sind vier neue Bäume vorgesehen, welche zusammen mit der städtischen straßenbegleitenden Pflanzung Baumgruppen bilden. Im Süden sind straßenbegleitende Bäume geplant.

Das zentral gelegene Freiraumelement erhält eine identitätsstiftende Atmosphäre mit organischer Formgebung, welches zum Spielen, Verweilen und Treffen einlädt.

Die Flachdächer werden extensiv begrünt.

ENERGIE / NACHHALTIGKEIT

Das Ziel unseres Energie- und Klimakonzeptes ist es, den Primärenergiebedarf für die Wärme- und Stromversorgung zu minimieren, wobei insbesondere die Wirtschaftlichkeit im Betrieb berücksichtigt wird.

Wichtige Kriterien sind dabei die Schaffung eines ausgeglichenen Wohnklimas und einer fürs Auge ansprechenden Umgebung - sowohl in den Gebäuden als auch im Bezug zum Außenraum.

Nachhaltigkeit wird beschrieben als Zusammenspiel von Effizienz, Suffizienz und Konsistenz.
Effizienz zeichnet sich durch die Kompaktheit der geplanten Gebäude ab.
Suffizienz wird erzielt durch die Fokussierung auf schlicht gehaltene Details.
Konsistenz wird durch eine entsprechende Fügung und Materialwahl erreicht - beispielsweise einer mineralischen Dämmung mit mineralischem Außenputz bzw. Fassadentafeln.

Wettbewerb: 
1. Rang
Wohnfläche: 
1.971 m²
Brutto-Rauminhalt: 
12.784 m³
Gemenge der 30 Mietwohnungen
(gefördert 22 SMW + 8 MME)
14 x 2-Zi-WE / 43-54m² (47%)
4 x 3-Zi-WE / 72-75m² (13%)
11 x 4-Zi-WE / 82-95m² (37%)
1 x 5-Zi-WE / 109m² (3%)
(%-Angaben bezogen auf Wohnungsanzahl)

Parkierung
30 Pkw-Stellplätze in TG