Direkt zum Inhalt
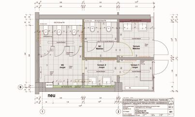
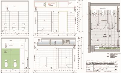
WC-Sanierung
Helene-Fernau-Horn-Schule
in Stuttgart-Freiberg
Adalbert-Stifter-Straße 52a
Bauherr
Landeshauptstadt Stuttgart Schulverwaltungsamt vertreten durch das Hochbauamt
Jahreslos
Ausführung
LPH 1-3 und 5-9
Bauzeit
07-09/2025
Projekterläuterung