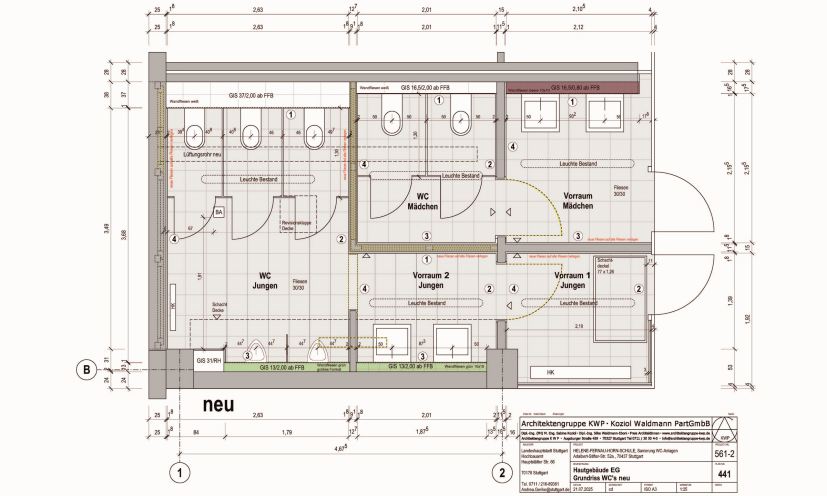
Im Hauptgebäude der Helene-Fernau-Horn-Schule konnten wir für das Schulverwaltungsamt der Landeshauptstadt Stuttgart, vertreten durch das Hochbauamt, die Toilettenanlage für Schülerinnen und Schüler auf Grundlage unserer Beauftragung im Jahreslos planen und die Ausführung der Bauarbeiten in den Sommerferien 2025 begleiten.
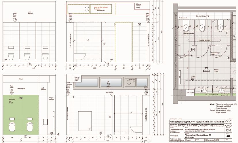
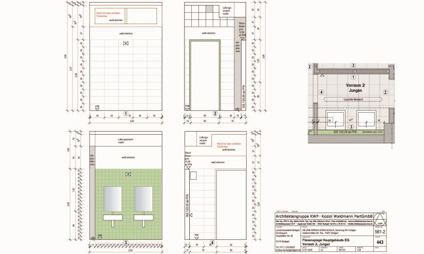
Die vorhandene Sanitäreinrichtung aus den 1970er-Jahren wurde inklusive aller Leitungen vollständig abgebrochen und erneuert. Die neuen beerenrot- und mintgrünfarbenen Fliesen verleihen den neuen Räumen ein zeitgemäßes Umfeld, welches die Schülerinnen und Schüler zum Schuljahr 2025/26 nutzen können.
Damit konnten wir den ersten Schritt von mehreren erforderlichen Sanierungsmaßnahmen der Bestandsbauten auf dem Gelände des Schulzentrums Stuttgart-Freiberg erfolgreich abschließen.










