Neubau Mediathek
in Renningen
Jahnstraße 11
Bauherr
Stadt Renningen
Stadtbauamt
Planungsgutachten 2013
1. Preis
Ausführung
LP 1-9
Bauzeit
10/2014 – 09/2016

Aufgabe

Aufgrund steigender Schülerzahlen und damit verbundenem erhöhten Platzbedarf im kooperativen Bildungszentrum wurde von der Stadt Renningen ein Architektenwettbewerb in Form eines Planungsgutachtens für den Neubau eines multifunktional nutzbaren Schulgebäudes mit Musikschule und einer Mediathek ausgelobt.
Die Aufgabe für die Mediathek bestand darin, der Stadtbibliothek, die bisher im Gebäude der Realschule untergebracht war, ein geeignetes bauliches Umfeld zur Präsentation von Büchern und weiteren Medienangeboten zu verleihen und eine "Brücke" zum Bürgerhaus und in die Stadt hinein zu schlagen.
Als Gewinner des Planungsgutachtens ging für beide Gebäude die Architektengruppe Kist Waldmann & Partner hervor, unter deren Federführung auch die Realisierung beider Neubauten und der Inneneinrichtung der Mediathek erfolgte.

Städtebauliche Neuordnung

Am Eingang des Renninger Bildungszentrums erhielt die Mediathek ihren neuen Standort an der Jahnstraße 11, gegenüber dem Bürgerhaus. Durch das Abrücken des Gebäudes von der Straße und Umgestaltung der Freianlagen im Süden entstand ein neuer, stadtraumbildender Platz. Der zweigeschossige Kubus fügt sich mit seiner kompakten, schlichten Bauform maßvoll in die heterogene städtebauliche Situation ein.

Äußeres Erscheinungsbild

Für die Gebäudehülle wurde ein Wechselspiel von geschlossenen Außenwänden und großflächig verglasten "Lese-Lounge"-Bereichen entwickelt.
Im Kontext zur vorhandenen Bebauung des kooperativen Bildungszentrums wurde als Oberfläche für die geschlossenen Fassadenbereiche eine helle Klinkerriemchenfassade mit lebendiger Struktur gewählt. Die großzügig verglasten Bereiche wirken wie "herausgeschnitten" und bilden mit ihren dunklen Fassadenprofilen einen deutlichen Kontrast. Hier öffnet sich der Neubau zum Außenbereich und lässt Einblicke ins Gebäudeinnere zu.

Konzeption

Besonderer Wert wurde auf einen gut auffindbaren und einladend wirkenden Haupteingang gelegt. Dieser ist durch einen baulichen Rücksprung gefasst.
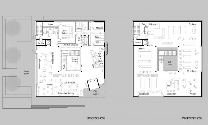
Im atriumartig gestalteten Gebäudeinneren wurde auf eine übersichtliche Gliederung der jeweiligen Nutzungen geachtet. In einem großzügigen, von oben natürlich belichteten Luftraum verbindet eine repräsentative Treppe beide Ebenen miteinander, ermöglicht vielfältige Blickbeziehungen und erleichtert die Orientierung.
Die Innenarchitektur wurde farblich bewusst zurückhaltend gestaltet, um das Augenmerk auf die Bücher und digitale Medien zu richten: weiße Möbel lassen die Medien als Farbtupfer hervortreten. Im Erdgeschoss überwiegen Sichtbetonwände und grauer Terrazzo-Estrich-Boden. Im Obergeschoss verleiht der Eiche-Parkettboden dem Raum einen warmen Charakter.

Nutzung

Neben dem Haupteingang befindet sich eine großzügig gestaltete Theke. Hier können sich die Besucherinnen und Besucher von den Mitarbeiterinnen beraten lassen sowie Medien ausleihen und zurückgeben.
Im Erdgeschoss steht ein Zeitschriftenregal mit Leseplätzen zur Verfügung. Weiterhin werden hier digitale Medien genutzt und die Besucherinnen und Besucher können es sich auf einem der Sofas oder auf der Fensterbank bequem machen. Für Einzel- oder Gruppenarbeit wurden weiterhin Arbeitstische mit digitalen Anschlüssen für Tablets oder Laptops realisiert. An zwei PCs steht ein öffentlicher Internet-Zugang zur Verfügung.
Für die warme Jahreszeit ergänzt ein Lesegarten im Außenbereich das Angebot.
Im Obergeschoss werden den Nutzern Sachbücher, Romane für Erwachsene sowie Kinder- und Jugendbücher altersgruppenbezogen präsentiert. Im Bereich der Außenwände sind Regale eingebaut, die "Lese-Lounge"-Fenster mit Sitzmöglichkeit sowie Akustikflächen integrieren. Zum Schmökern laden altersgerecht konzipierte Leseplätze ein. Für die Kleinsten wurde ein Sitzpodest entwickelt, an dem z.B. an einer Hörstation CDs abgespielt werden können.
Im kompakten Funktionsbereich sind ein Veranstaltungsraum, Räume der Verwaltung, sowie die Sanitäranlagen angeordnet.
Insgesamt steht in der neuen Mediathek eine Netto-Raumfläche von knapp 1.200m² zur Verfügung. Derzeit können 25.000 Medien in den Bereichen Romane und Sachbücher, Zeitungs- und Zeitschriften-Abonnements, Kinderbücher, Comics, CDs und DVDs sowie Gesellschafts- und Konsolenspiele ausgeliehen werden, als Zielbestand sind 34.000 Medien geplant.
Für die Medienrecherche kann der öffentlich zugängliche Online-Katalog (OPAC) genutzt werden. Das Ausleihen der Medien ist an den Selbstverbuchungsplätzen möglich. Die Rückgabe kann auch außerhalb der Öffnungszeiten an der Außenrückgabe entlang der Jahnstraße erfolgen.

Konstruktion und energetischer Standard

Zugunsten einer Optimierung des energetischen Standards wurden bei Schule und Mediathek die Werte der EnEV 2009 deutlich unterschritten. Die Beheizung des Stahlbetonskelettbaus mit Wärmedämmverbundsystem erfolgt über ein Nahwärmenetz von einem Holzhackschnitzel-Heizwerk aus. Alle Räume sind mit Fußbodenheizung ausgestattet und erhalten ihre Frischluftversorgung weitestgehend über eine mechanische Be- und Entlüftungsanlage mit Wärmerückgewinnung. Eine Photovoltaikanlage auf dem begrünten Flachdach leistet zusätzlich einen Beitrag zur Nutzung erneuerbarer Energien.

Wettbewerb: 
1. Preis
Netto-Raumfläche: 
1.189 m²
Brutto-Rauminhalt: 
6.883 m³
Nutzung Erdgeschoss
Zeitungs-/Zeitschriften-Leseplätze, digitale Medien (CD, DVD, Konsolenspiele), Gesellschaftsspiele, Plätze für Einzel-/ Gruppenarbeit, Veranstaltungsraum, Verwaltung

Nutzung Obergeschoss
Sachbücher, Romane für Erwachsene, Kinder-/Jugendbücher, Comics

Medienrecherche mit Online-Katalog (OPAC), Medienausleihe an Selbstverbuchungsplätzen, Außenrückgabemöglichkeit, Lesegarten

Zielbestand 34.000 Medien
Architekturaufnahmen: 

Friedemann Rieker, Göppingen