Direkt zum Inhalt
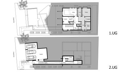
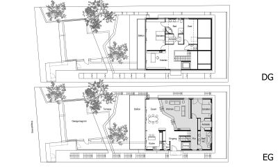
Neubau Einfamilienhaus S
in Stuttgart-Vaihingen
Bauherr
privat
Direktbeauftragung
Ausführung
LP 1-9
Bauzeit
09/2006 - 04/2008
Projekterläuterung