Neubau Einfamilienhaus S
in Stuttgart-Vaihingen
Bauherr
privat
Direktbeauftragung
Ausführung
LP 1-9
Bauzeit
09/2006 - 04/2008

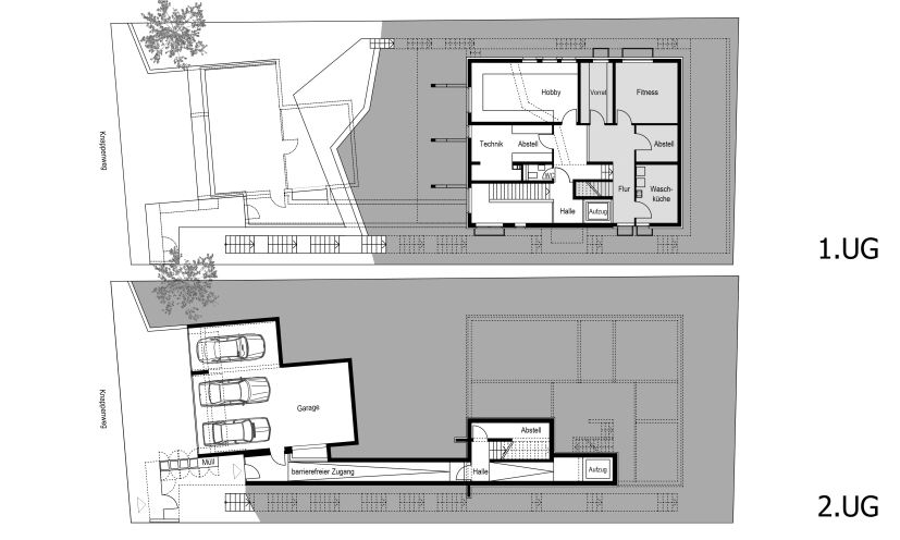
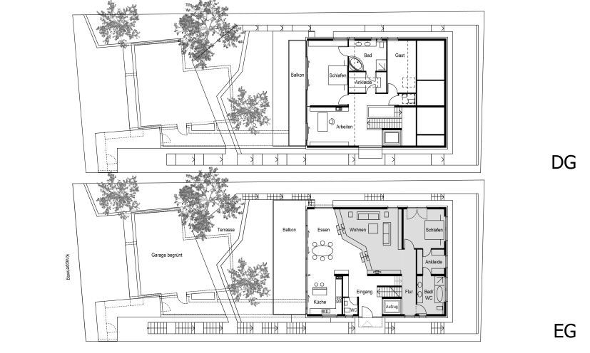
Für ein Bauherren-Ehepaar entstand am Südhang im Wohngebiet Dachswald ein großzügiges, offen gestaltetes Wohnhaus mit 509 m² Wohn- und Nutzfläche, das sich durch eine großzügige Verglasung nach Süden hin öffnet.

Die Hangsituation mit Aufweitung nach Süden wird im Gebäude durch eine Split-Level-Raumanordnung und das Integrieren von schräg angeordneten Sitzstufen in der Wohnebene hervorgehoben und im Bereich der Außenanlagen fortgesetzt. Barrierefrei und trockenen Fußes erfolgt der Gebäudezugang über einen unterirdischen Zugang mit Aufzug. Die Beheizung des Gebäudes erfolgt durch eine Geothermieanlage mit Erdsonden. Die Be- und Entlüftungsanlage mit Wärmetauscher befördert vorgewärmte Luft in die Wohnräume.

 

Wohnfläche: 
509 m²
Architekturaufnahmen: 

Peter Schmidt Photodesign, Notzingen