Neubau 6 WE
in Esslingen-Hohenkreuz
Brackenheimerweg 11
Bauherr
Baugenossenschaft Filder eG
Mehrfachbeauftragung 2015
1. Rang
ARGE mit FRA Fischer Rüdenauer
Ausführung
LP 1-9
Bauzeit
06/2017 - 08/2018

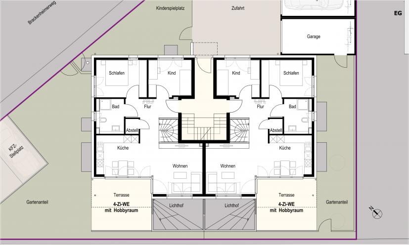
Die Baugenossenschaft Filder eG errichtete auf dem Eckgrundstück Barbarossastraße und Brackenheimerweg in Esslingen-Hohenkreuz sechs Eigentumswohnungen. Das neue Mehrfamilienhaus mit zwei Vollgeschossen und Satteldach ersetzt die vorhandenen beiden Doppelhaushälften aus den 1960-er Jahren.

Der Hauszugang erfolgt vom Brackenheimerweg im Norden. Ein zweigeschossiger Vorbau und Balkone gliedern das Gebäude auf der Südseite. Die Fenster der Hauseingangs- und Giebelseiten erhielten gemauerte Brüstungen und wurden bandartig zusammengefasst.

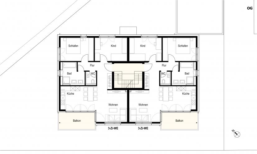
Das Mehrfamilienhaus im Zweispännertypus erhielt zugunsten von natürlich belichteten Wohnräumen ein innenliegendes Treppenhaus mit großzügig gestaltetem Treppenauge, über das natürliches Licht von den Dachfenstern ins Treppenhaus gelangt.

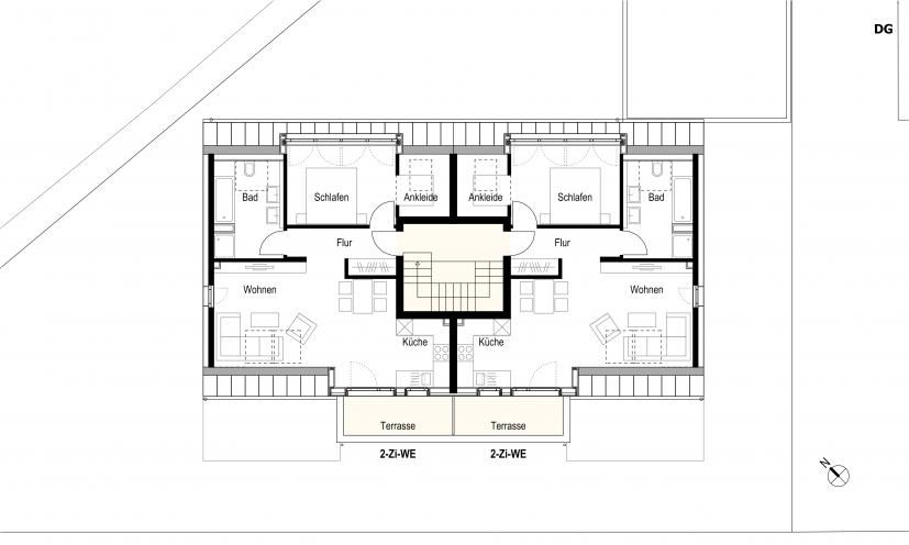
Besonderer Wert wurde bei der Planung auf helle, lichtdurchflutete Aufenthaltsräume gelegt. Alle Wohnzimmer sind zusammen mit offen gestalteten Küchen und Essbereich nach Südwesten ausgerichtet. Durch großzügige, bodentiefe Verglasungen werden die Balkone und Terrassen mit angrenzenden Grünanlagen optisch in den Wohnraum einbezogen.

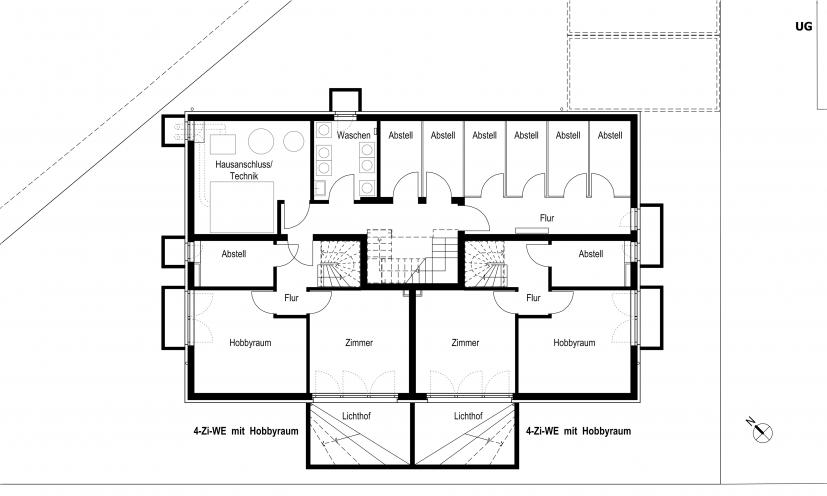
Die beiden Wohnungen im Erdgeschoss wurden als Maisonette-Wohnung mit interner Treppe ins Untergeschoss ausgestattet, wo sich ein weiterer Aufenthaltsraum und ein Hobbyraum befinden.
Die Bäder sind in allen Wohnungen natürlich belichtet und belüftet, die WCs sind teilweise innenliegend geplant.

Aufgrund des frühzeitigen Verkaufs während der Bauphase konnten die neuen Eigentümer ihre Wünsche zum Wohnungsausbau einbringen.

Grundlage für den energetischen Standard ist die EnEV 2016. Die Beheizung und Warmwasserbereitung erfolgt zentral mittels einer Holzpellet-Heizanlage mit Rußpartikelfilter. Alle Wohnräume wurden mit einer Niedertemperatur-Fußbodenheizung ausgestattet.

Der Entwurf zum Neubau des Mehrfamilienhauses entstand in Zusammenarbeit mit rüdenauer-architektur, Stuttgart.

Wettbewerb: 
1. Rang
Wohnfläche: 
512 m²
Brutto-Rauminhalt: 
2.554 m³
Gemenge der 6 Eigentumswohnungen
EG/UG 2 x 4-Zi-WE 123m² (33%)
mit Hobbyraum
OG 2 x 3-Zi-WE 77m² (33%)
DG 2 x 2-Zi-WE 55m² (33%)

Parkierung
3 Garagen
3 offene Stellplätze
Architekturaufnahmen: 

Peter Schmidt Photodesign, Notzingen