Geschäftsstellenumbau
in Stuttgart-Degerloch
Hainbuchenweg 16
Bauherr
Landesbaugenossenschaft
der Finanzbeamten eG
Ausführung
LPH 1-4
Bauzeit
10/2023-10/2024

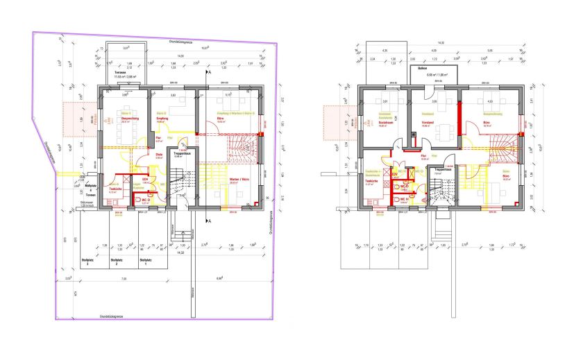
Das Bestandsgebäude der Landesbaugenossenschaft der Finanzbeamten eG im Hainbuchenweg 16 wurde 1954 errichtet und nun das erste Mal grundlegend von der Willi-Müller-GmbH als GU umgebaut und energetisch saniert.

Die Geschäftsstellenräume befanden sich zuvor lediglich im Erdgeschoss, nun können zusätzlich die Räume des Obergeschosses für den Geschäftsstellenbetrieb genutzt werden. Eine neue Stahlwangentreppe mit Holzstufen und Streckmetallfüllung verbindet beide Ebenen miteinander. Das LBG-Team arbeitet in neugestalteten und lichtdurchfluteten Räumen, die nach einem Innenraumkonzept der Architektengruppe KWP umgebaut und modernisiert wurden. Neue Glaswände vermitteln eine großzügige, zeitgemäße und offene Arbeitsatmosphäre. Ein Arrangement aus anthrazitfarbenen Elementen, kombiniert mit Holz und weißen Oberflächen, verleiht der LBG-Geschäftsstelle ein neues Erscheinungsbild. Der umgebaute Konferenzraum wird für zahlreiche Besprechungen, Aufsichtsratssitzung und genossenschaftliche Veranstaltungen genutzt.

Eine großzügige Vierzimmerwohnung mit Wohnküche wurde im Dachgeschoss bereits Ende Mai 2024 fertig gestellt. Diese wurde vom Team der Landesbaugenossenschaft der Finanzbeamten eG während der Umbaumaßnahmen im EG und OG interimsmäßig für den Geschäftsstellenbetrieb genutzt und ist nun als Wohnung vermietet.

Die Außenwände wurden bereits vor einigen Jahren gedämmt, das Dach wurde im Winter 2023/2024 saniert und gedämmt. Die Wärmeerzeugung sowie sommerliche Kühlung erfolgt über eine Wärmepumpe, die mit Strom aus der neuen Photovoltaikanlage versorgt wird.

Die Wärmeerzeugung sowie sommerliche Kühlung erfolgt über eine Wärmepumpe, die mit Strom aus der neuen Photovoltaikanlage versorgt wird.

Mit der Sanierung des Bestandsgebäudes im Hainbuchenweg 16 wurde dieses Pilotprojekt der neu erarbeiteten LBG-Dekarbonisierungsstrategie im Zuge des Klimapfads erfolgreich abgeschlossen. Weitere Sanierungsmaßnahmen der Bestandsgebäude in Stuttgart und im Umland sind geplant und werden in den nächsten Jahren umgesetzt.

Architekturaufnahmen: 

© Moritz Dollinger, Stuttgart (Vorher / Nachher Querformat, Bild 1-14)
© Architektengruppe KWP (Detailaufnahmen Hochformat, Bild 17-21)