Büroerweiterung und
Anbau Verbindungssteg
Verwaltungsgebäude
Stadtwerke Fellbach
Ringstraße 5
Bauherr
Stadtwerke Fellbach
Direktbeauftragung
Ausführung
LP 1-9
Bauzeit
09/2011-04/2012

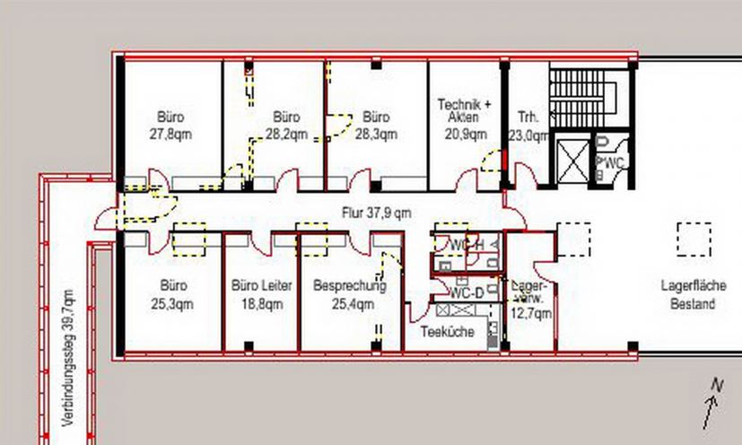
Für eine räumliche Erweiterung des Hauptsitzes der Stadtwerke Fellbach an der Ringstraße 5 wurde im Obergeschoss eines bestehenden Lagergebäudes aus den 1970er-Jahren ein neuer Verwaltungsbereich geschaffen. Auf knapp 270m² Nettogrundfläche entstanden 6 neue Büroräume, ein Besprechungsraum, ein Raum für Technik und Akten sowie eine Teeküche und neue WC-Anlagen. Im Zuge der energetischen Sanierung erhielt das Gebäude im Umbaubereich ein Wärmedämmverbundsystem und neue Kunststofffenster mit außenliegendem Sonnenschutz in Form von Alu-Raffstores.

Die neue Raumaufteilung erfolgte zugunsten einer kurzen Bauzeit mit Gipskartonständerwänden, die abgehängte Gipskartondecke verbessert die Raumakustik in den Büro- und Besprechungsräumen.

Zur Anbindung der neuen Büroräume an das Hauptgebäude, das die Architektengruppe KKFW Anfang der 1980er-Jahre gebaut hatte, wurde ein verglaster Stahlsteg zwischen die beiden Gebäudeteile gesetzt.

Um den Hofbereich unterhalb des Steges auch mit größeren Fahrzeugen nutzen zu können, und um die statischen Eingriffe in der darunter befindlichen Tiefgarage möglichst gering zu halten, wurde eine Konstruktion mit nur 2 Stahlstützen gewählt. Die große Spannweite konnte mit Vierendeel-Trägern realisiert werden. Da die Steg-Verglasung ausschließlich der Funktion des Wetterschutzes dient und der Verbindungssteg nicht beheizt wird, war eine VSG-Einfachverglasung im Bereich der Alu-Pfosten-Riegel-Konstruktion ausreichend.

Die Werkstatträume im Erdgeschoss, sowie die verbleibende Lagerfläche im Obergeschoss, wie auch das Hauptgebäude, blieben baulich unverändert bestehen.

Architekturaufnahmen: Peter  Schmidt  Photodesign,  Notzingen

Netto-Raumfläche: 
270m²