Direkt zum Inhalt
Wettbewerb
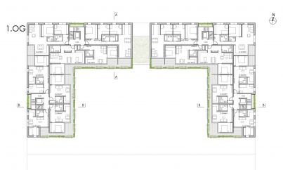
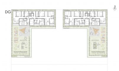
Wohnanlage Neckarpark Q5
in Stuttgart-Bad-Cannstatt
Bauherr
Baugenossenschaft
Gartenstadt Luginsland
und
Baugenossenschaft Münster
nicht offener Wettbewerb 2021
3. Rang
ARGE mit FRA Fischer Rüdenauer
Ausführung
Projekterläuterung