Direkt zum Inhalt
Bauen im Bestand
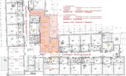
Seniorenzentrum
St. Elisabeth in Heilbronn,
Anpassung an
die LHeimBauVO
Lauterbachweg 4
Bauherr
Paul Wilhelm von Keppler-Stiftung
Direktbeauftragung
Ausführung
LPH 1-2
Projekterläuterung